Мы используем куки-файлы. Соглашение об использовании
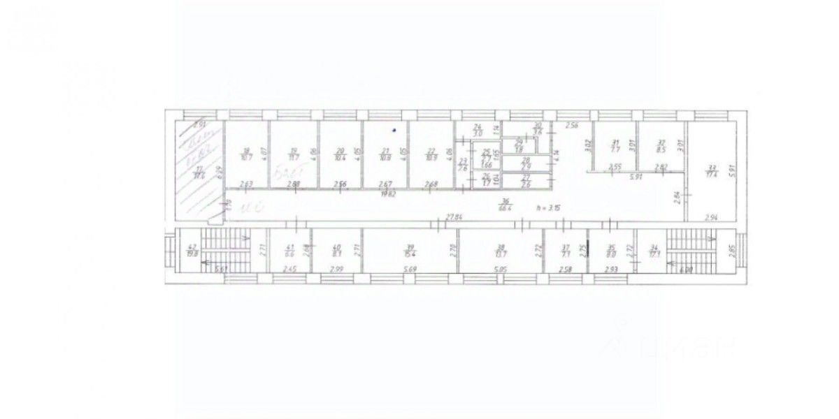
Помещение свободного назначения, 278 м²

Сдается помещение свободного назначения, 278 м²

Площадь278 м²
Этаж3 из 3
ПомещениеСвободно
Отчёт о привлекательности объектаУзнайте, насколько помещение и район подходят для вашего бизнеса
Что входит в отчёт
  • Охват населения
  • Пешеходный трафик
  • Автомобильный трафик
  • Средний бюджет семьи по району
  • Арендные ставки рядом
  • Точки притяжения
  • Конкуренты в радиусе 1 км
  • Рекомендации по выбору места для бизнеса
От собственника! Без комиссии! Сдается в аренду помещение свободного назначения Третий этаж отдельно стоящего здания общей площадью 278 кВ.м, из них 86,2 кв.м - места общего пользования С ремонтом Первая линия Парковочные места Удобные подъездные пути Транспортная доступность В здании имеется столовая Санузел общий на этаже Отдельный вход Отличный вариант под офисы, гостиницу Коммунальные услуги оплачиваются отдельно По всем вопросам можете обращаться к представителям собственника: Венера Ш (742), Рашитов Н (739)
lock

Войдите или зарегистрируйтесь
для просмотра информации

Просматривайте условия сделки и всю информацию об объекте
Сохраняйте фильтры в поиске и не вводите заново
Доступ к избранному с любого устройства
Неограниченное добавление в избранное
Позвоните автору
Вам ответят на все вопросы
Остались вопросы по объявлению?
Позвоните владельцу объявления и уточните необходимую информацию.
  • Инфраструктура
  • Похожие рядом
  • Общая площадь278 м²
Помощь надёжных риелторов
Риелтор партнёр Циан поможет купить или продать любую недвижимость
166 800 ₽/мес.
2 224 $/мес.
1 896 /мес.
Цена за метр
7 200 ₽ в год
Налог
УСН
Комиссия
нет
Коммунальные платежи
не включены
Эксплуатационные расходы
не включены
Агентство недвижимости
Документы проверены
На Циан
7 лет
Объектов в работе
более 1000