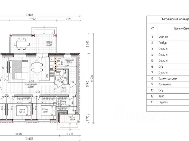
Продаю дом в коттеджном поселке Пятый Элемент, 3-я улица, ,в черте города, 1-этажный с мансардными окнами, из газобетона облицован хорошим качественным керамическим кирпичом, общая площадь дома- 140 кв.м, гостиная- кухня, 3 просторные спальни, ванная, с/у, прихожая, гардеробная, котельная, ЧЕРНОВАЯ ОТДЕЛКА, окна- пластиковые, кровля- мягкая черепица,, коммуникации в наличии, электричество, центральная вода , септик, ведутся работы по газификации поселка, 10 соток земли, цена 13 900 т.р., звоните бронируйте, возможен обмен на квартиру, авто, рассрочка, любая ипотека, звоните всегда договоримся,, также строим 1 эт дома в Подсолнухах, Рябинке, 2-х этажные 250 кв.м в Пятом Элементе, п. Ближний, 71 мкрн. есть готовые дома,























































































