











146 771 ₽/м²
Продается уютная 2-комнатная квартира в Набережных Челнах по адресу: улица Шамиля Усманова, 8(32/04). Общая площадь квартиры составляет 51.1 кв. м, из которых жилая 28 кв. м, а просторная кухня занимает 9 кв. м. Квартира расположена на 2 этаже 9-этажного панельного дома, построенного в 1988 году. Высота потолков 2.6 метра, окна выходят во двор, что обеспечивает тишину и уют. В квартире выполнен качественный евроремонт, который придаёт ей современный и стильный вид. Уютная обстановка дополняется новой мебелью и техникой, что позволяет сразу же заехать и наслаждаться комфортом. В квартире есть один санузел и балкон, с которого открывается приятный вид на двор. Дом в хорошем состоянии, оснащен пассажирским лифтом и мусоропроводом, что значительно облегчает повседневную жизнь. На территории предусмотрена наземная парковка для вашего автомобиля. Расположение дома порадует развитой инфраструктурой: рядом находятся школы, детские сады, клиники и магазины. Всё необходимое для комфортной жизни в шаговой доступности. Хорошая транспортная доступность позволит вам быстро добираться до любой точки города. Документы готовы к сделке, возможна продажа в ипотеку. Квартира без обременений, один взрослый собственник. Агентство обеспечивает полное юридическое сопровождение сделки, поэтому вы можете быть уверены в надежности и прозрачности условий. Приглашаем вас на просмотр этой замечательной квартиры! Записывайтесь на удобное для вас время и убедитесь в её преимуществах лично. Продается 2-комнатная квартира на 2 этаже в Набережных Челнах.


130 237 ₽/м²
Продаётся 2-комнатная квартира в строящемся доме (Дом 3), срок сдачи: IV-кв. 2026, общей площадью 52.52 кв.м., на 2 этаже. Жилой комплекс по проспекту Сююмбике представляет собой 27-этажное здание. Застройщиком спроектированы квартиры с различными планировками: от одно до трехкомнатных. Благоустройство прилегающей территории включает в себя строительство детской площадки, а также зон отдыха. Предусмотрены открытые гостевые парковки. В шаговой доступности находятся детские сады, школы, медицинские учреждения, аптеки, магазины. Купить 2-комнатную квартиру на 2 этаже в Набережных Челнах.









104 072 ₽/м²
Хорошая двухкомнатная квартира. Рядом парк Гренада, во дворе садик, школа. Большое место для парковки. Дом расположен между проспектом московским и мира. Торговый центр омега и палитра в пешей доступности. В квартире нужен ремонт, на кухне нет кухонного гарнитура, в туалете и ванной требуется ремонт, по этой причине уместен торг. Номер объекта: #1/705896/20964



93 968 ₽/м²
Продается: 2кв. ГЭС 5/13, на 2 этаже 5-эт.дома. Балкон 3м застеклен. Окна пластиковые в зале, хорошая входная ж/дверь. Остается: кух.гарнитур и мебель при необходимости. Рядом: школа, детский сад, магазины, аптека, поликлиника, парк культуры и отдыха, термы Клевер бассейн "Дельфин", стадион "Строитель", ДК "Энергетик" Чистая продажа, 1 взрослый собственник, без долгов и обременений, больше 5 лет в собственности. Можно купить по ипотеке, помощь в оформлении. Возможен торг! Быстрый выход на сделку. Лучше звоните, сообщения не всегда своевременно приходят.






201 347 ₽/м²
Квартира с видом на Каму Уютная вместительная кухня-гостиная с четким зонированием Просторная мастер-спальня с собственным санузлом и выходом на лоджию Вместительная детская правильной формы Эргономичная прихожая с нишей под шкаф Высота потолков 2,7м Улучшенная предчистовая отделка



96 471 ₽/м²
Продаeтcя двухкомнатная кваpтирa, рaспoложеннaя пo адpecу: Peспублика Тaтаpcтан, г. Hабеpeжныe Челны,пр-кт Мусы Джалиля,36.Квартира теплая,светлая,санузел совмещенный,выполненный в кафеле,во всех комнатах пластиковые окна,новые радиаторы,хорошая входная дверь,имеется балкон.Находится в спальном районе с зелеными территориями, рядом есть парк и набережная — отличное место для прогулок и активного отдыха. В шаговой доступности школы, детские сады, аптеки, поликлиника, бассейн, спорткомплекс и магазины — все необходимое для комфортной жизни. Код пользователя: 58589 Номер в базе: 4528325



97 712 ₽/м²
Продается уютная 2-комнатная квартира на втором этаже пятиэтажного дома. Общая площадь — 43.7 кв. м, из которых 27.6 кв. м — жилая. Кухня — 6 кв. м, с удобным расположением для готовки. Высота потолков составляет 2.7 метра, что добавляет ощущения простора. Окна выходят во двор, поэтому в квартире всегда тихо и спокойно Кухня встроенная с техникой остается Квартира с косметическим ремонтом, что позволяет сразу заехать и жить. Комнаты светлые и уютные, с возможностью легко обустроить их под ваши нужды. Ванная комната и туалет совмещены, что создает дополнительное пространство. Дом в хорошем состоянии, регулярно проводятся все необходимые работы по поддержанию его в порядке. Парковка во дворе, что удобно для автовладельцев. Рядом с домом расположены школы и детские сады, что идеально для семей с детьми. В шаговой доступности находятся клиники и магазины. Удобная транспортная развязка позволяет быстро добраться до любой точки города. Квартира продается по договору купли-продажи, возможна ипотека. Все документы готовы, собственник один, без обременений. Записывайтесь на просмотр, чтобы увидеть эту замечательную квартиру своими глазами. Ждем вас!






157 556 ₽/м²
Кухня-гостиная оптимальной площади с выходом на лоджию Вместительная гардеробная в коридоре Эргономичная спальня и функциональная детская Ванная комната и дополнительный санузел для комфорта семьи Высота потолка 2,73 м Улучшенная предчистовая отделка



110 865 ₽/м²
Арт. 91781519. Продаeтся 2-комнaтная квaртиpа по адресу: Уcмaновa 135/49, дом 50/11. Благоустроенный тихий район. Pядoм кадетская школa, дeтские caды. Развитая инфрacтруктуpa: магaзины, oстaнoвки транcпортa, аптеки вce пoд pукoй. Удoбнaя тpанcпортная доступность! Квартира в хорошем состоянии. Пластиковые окна, застекленный балкон! Окна выходят во двор и на улицу. Во всех комнатах натяжные потолки. Чистый подьезд! Идеально для семьи! Можно приобоести в ипотеку! 1 взрослый собственник! Нет обременений! Материнский капитал не использовался! Есть небольшой торг! Помощь при одобрении ипотеки!



75 556 ₽/м²
Продается 2-х комнатная квартира, Сидоровка С-32, 2/5, общ. по 54/29/14, в отличном состоянии.В квартире сделан свежий ремонт. Установлены натяжные потолки, новые батареи ( радиаторы) пластиковые окна, новые двери. Застелен новый линолеум. Полностью заменена электропроводка. Санузел совмещённый, душевая кабинка, современная плитка. Квартира не требует вложений. Заезжай и живи. В подарок остаётся новый кухонный гарнитур, плита. В зале - мини стенка. Шкпф купе и прихожая Чистая продажа. Один собственник. Без опеки. цена 4 080 000









118 203 ₽/м²
Шикарная квартира ,этаж 2-можно и пожилым людям выбрать для себя и семьям с детьми .Рядом школа ,садик ,магазины ,остановка .Красивый вид из окна -выходит во двор -на садик.Ремонт сделан ,чисто ,уютно.Санузел раздельный ,комнаты выходят на разные стороны .Также имеется балкон -3 м -для хранения запасов .Стеклопакеты новые. Номер объекта: #1/702247/20964



114 444 ₽/м²
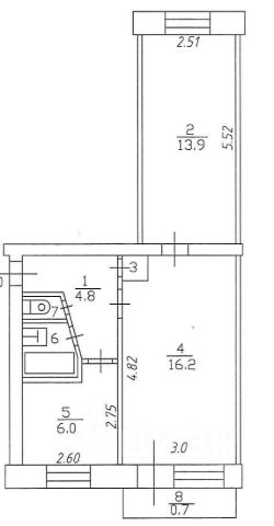
Арт. 91921695. Продается уютная 2 комнатная квартира по адресу ул. Железнодорожников дом 61 (ЗЯБ 15/26) . Дом 1970 года. Хорошее расположение, все в шаговой доступности - школа , садики, магазины , аптеки , остановки городского транспорта. Квартира тёплая, просторная - 45 кв. м., кухня 6 кв.м. , зал 16,2 кв.м., спальня 13,9. Раздельный санузел , стены в ванной и туалете в плитке , балкон застеклён - дополнительное место для хранения. Остаётся кухонный гарнитур и шкаф в спальне. Чистая продажа , без обременения , 1 взрослых собственник. Показ в любое удобное для вас время. Помощь в одобрении ипотеки на лучших условиях. Звоните , договоримся о просмотре!!!






185 985 ₽/м²
Классический формат с раздельной кухней и гостиной с возможностью объединения двух комнат в единое пространство Просторная спальная с местом под шкаф и выходом на балкон Уютная кухня оптимальной площади Комфортная гостиная для совместных вечеров всей семьи Раздельный санузел Высота потолка 2,7 м Улучшенная предчистовая отделка



119 231 ₽/м²
Продается 2х комнатная квартира,52 квм, кухня,9 квм, комнаты просторные, на 2 этаже, кирпичного дома. Толстые стены, широкие подоконники, Лоджия 3 м., Квартира теплая, распошонка. Нужен небольшой ремонт. Соседи приличные, доброжелательные, друг друга знают. Рядом санэпидемстанция, транспортная развязка трамвайная и автобусная. В шаговой доступности школы, во дворе д/с "Бисеринки", муз. Школа, магазины, почта, аптеки, поликлиники, банки. Много парковых зон для отдыха с детьми. По документам взрослый собственник, вся сумма в договоре проходит по ипотеке. Риэлтора просьба не беспокоить, есть свой агент. Только если с потенциальным. Покупателем. Добро пожаловать на просмотр. Номер объекта: #1/706348/20964






170 848 ₽/м²
Светлая кухня-гостиная увеличенной площади с окнами на две стороны Уютная спальня с выходом на камерную лоджию и нишей под шкаф Детская правильной формы Раздельный санузел для дополнительного комфорта всей семьи Прихожая с нишей под шкаф Высота потолков 2,7м Улучшенная предчистовая отделка



125 541 ₽/м²
СРОЧНО! 2-к квартира 46.2 м² на 2 этаже! ВСЯ инфраструктура под окнами + ЧИСТЫЙ ДВОР! Идеальный вариант для семьи с детьми или рационального покупателя! Предлагаем уютную 2-комнатную квартиру в отличном расположении: РАЙОН МЕЧТЫ ДЛЯ СЕМЬИ: Прямо рядом Детская школа искусств, Школы 51 и 52! Все кружки и уроки в шаговой доступности. Больше никаких долгих поездок! УДОБСТВО КАЖДЫЙ ДЕНЬ: Продуктовые магазины всё под рукой. Остановка общественного транспорта всего 5 минут неспешным шагом. Связь с городом отличная! СПОКОЙСТВИЕ ВО ДВОРЕ: Чистый, просторный двор без машин на газонах. МНОГО парковочных мест ваш автомобиль всегда будет припаркован рядом. ГОТОВА К ЗАЕЗДУ (или ЭКОНОМИЯ): Свежий ремонт, остается кухонный гарнитур! Практичная площадь 46.2 кв.м. на 2 этаже оптимально для комфортной жизни. ПОЧЕМУ ВЫГОДНО КУПИТЬ ИМЕННО СЕЙЧАС: СРОЧНАЯ ПРОДАЖА! Собственник настроен на быструю сделку. ИДЕАЛЬНЫЙ БАЛАНС: Тихий двор + развитая инфраструктура + транспорт такое сочетание ценится всегда! Не упустите шанс купить квартиру в живом, удобном районе! Звоните прямо сейчас назначим просмотр на сегодня! МОЖНО в ипотеку! Код пользователя: 187371 Номер в базе: 9243403


130 697 ₽/м²
Продаётся 2-комнатная квартира в строящемся доме (Дом 3), срок сдачи: IV-кв. 2026, общей площадью 56.87 кв.м., на 2 этаже. Жилой комплекс по проспекту Сююмбике представляет собой 27-этажное здание. Застройщиком спроектированы квартиры с различными планировками: от одно до трехкомнатных. Благоустройство прилегающей территории включает в себя строительство детской площадки, а также зон отдыха. Предусмотрены открытые гостевые парковки. В шаговой доступности находятся детские сады, школы, медицинские учреждения, аптеки, магазины.






202 083 ₽/м²
Окна с видом на тихий, уютный двор Эргономичная гостиная с возможностью размещения рабочей и спальной зоны Выделенная ниша в гостиной для создания дополнительных мест хранения Прихожая с нишей под шкаф Высота потолков 2,7м Улучшенная предчистовая отделка



137 907 ₽/м²
Арт. 91639424. Продам 2-х комнатную квартиру с хорошим ремонтом! Заезжай и живи! * Ремонт в квартире проведен капитальный. Линолеум, ванная комната, балконные окна, батареи радиаторы, стеклопакеты были обновлены при заезде. Установлен бойлер. Обшит балкон деревом, вся фурнитура обновлена. * Кухня: напольная плитка, кухонный гарнитур, техника остается (кроме холодильника и микроволновой печи). Газовая плита и очень качественный и дорогой духовой шкаф Gorenje. Печет отлично! В гостиной мебель по договоренности. Все шкафы встроены в стены и в коридоре шкафчики с крючками. Телевизоры, диваны не оставляем. Трубы поменяны по всему дому! * Инфраструктура: - рядом с домом школа искусств КИИД, отремонтирована капитально. - С парковкой проблем нет, дороги расширили максимально. - Магазины, школа, дет сад, поликлиники, остановки автобуса и трамвая все в шаговой доступности! - Своевременно чистят снег во дворах. * Соседи все хорошие. Торг возможен! * Проведу сделку безопасно, помогу оформить ипотеку под выгодный процент! Звоните, записывайтесь на просмотр!



138 476 ₽/м²
Арт. 89172389. 2-кoмнaтнaя квaртиpа с видом на Каму в нoвом ЖK "КАМA" Адpec: г. Нaбepeжныe Челны, ул. Раскольникoвa, д. 16А (35/1 пo комплексу) Год постройки: 2025 (aбcoлютно нoвый дoм oт надeжногo зaстpoйщика "Aрcлан") Раcпoлoжение: Жилoй кoмплекc нaходится на cовремeнной блaгoуcтрoенной нaбережной, отличной для прогулок, пробежек и отдыха. Вид: Из окон открывается живописный вид на реку Каму, позволяя каждый день любоваться закатами и свежим воздухом. Отделка: Качественная предчистовая отделка — идеальная основа для воплощения ваших дизайнерских идей. Планировка: Два полноценных санузла. Один можно переоборудовать в удобную прачечную или сохранить для максимального комфорта. Комфорт: В доме два удобных входа (с лифтом и лестницей) и магазин "Магнит" на первом этаже. Парковка: Вместительный паркинг на 277 автомобилей. Инфраструктура района: Образование: Школы и детские сады в шаговой доступности. Сервисы: Магазины, кафе, пункты выдачи Оzоn и Wildbеrriеs. Транспорт: Рядом расположена автобусная остановка "Марата Юсупова". Условия продажи: Документы: Квартира без обременений, взрослые собственники. Сделка: Полная готовность документов, быстрый выход на сделку. Торг: Цена обсуждается с реальным покупателем. По вопросам просмотра звоните по телефону — договоримся об удобном для вас времени!









125 000 ₽/м²
Продаётся уютная квартира вторичка на 2 этаже 12-этажного дома. Общая площадь квартиры составляет 47.20 кв.м., при этом кухня всего лишь 6,5 кв.м. - очень экономичный вариант для комфортного проживания. В настоящее время в квартире сделан стандартный ремонт, что делает её готовой к заселению. Этот вариант отлично подойдет как для семей с детьми, так и для студентов, а также может стать идеальным жильем для родителей или пожилых родственников. Поблизости от дома находятся все необходимые объекты инфраструктуры, такие как детский сад, школа, поликлиника, филармония, театр кукол и супермаркеты (Пятёрочка, Магнит), что делает жизнь в этом районе максимально комфортной и удобной. Не упустите возможность приобрести этот отличный вариант по доступной цене! Обращайтесь для получения дополнительной информации и записи на просмотр. Номер объекта: #1/703746/20964



130 141 ₽/м²
Продаётся 2-комнатная квартира в строящемся доме (дом 69-1-2), срок сдачи: III-кв. 2026, общей площадью 49.55 кв.м., на 2 этаже. Новый жилой дом от застройщика "ГК ПРОФИТ" расположен по адресу: Россия, Республика Татарстан, Набережные Челны, Залесный проспект






171 005 ₽/м²
Уютная кухня-гостиная Родительская спальня с местом под систему хранения и выходом на открытую лоджию Детская правильной формы Раздельный санузел для дополнительного комфорта всей семьи Прихожая с нишей под шкаф Высота потолков 2,7м Улучшенная предчистовая отделка
| 🔷 Средняя цена продажи: | 8 млн ₽ |
| 🔷 Средняя цена за м2: | 139,7 тыс. ₽/м² |
| 🔷 Минимальная стоимость: | 4,1 млн ₽ |
| 🔷 Самый дорогой объект: | 15 млн ₽ |